Maintenance
INFO@symondsandgreenaway.co.uk 01733 913603
  • BUY
  • SELL
  • RENT
  • ABOUT
  • CONTACT US

405, Guild House, Oundle Road, Peterborough, PE2

£1,700 pcm
This property is not currently available. It may be sold or temporarily removed from the market.

405, Guild House, Oundle Road, Peterborough, PE2

£1,700 pcm
  • Availability: To Let
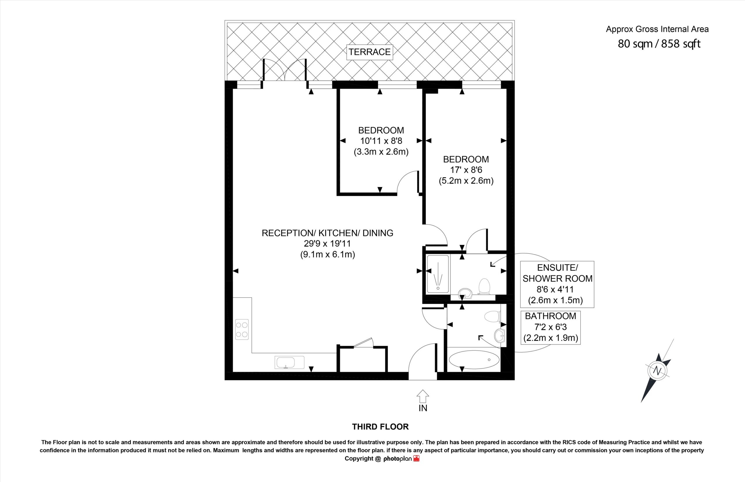
  • Bedrooms: 2
  • Bathrooms: 2
  • Reception Rooms: 1
  • Deposit: 1,950
  • Available: Now
  • Make Enquiry

    Make Enquiry

    Please complete the form below and a member of staff will be in touch shortly.

    Thank you. Your enquiry has been sent successfully.
    An error occurred whilst trying to send your enquiry. Please try again.
    Please ensure all required fields have been completed
  • Virtual Tour

Property Summary

BRAND NEW DEVELOPMENT - RANGE OF PENTHOUSES/ONE/TWO BEDROOM APARTMENTS - SOUTH OF THE RIVER - LUXURY LIVING - NEWLY REFURBISHED - VIDEO TOURS AVAILABLE - CONTACT OUR LETTINGS TEAM TO FIND OUT MORE

Full Details

Symonds & Greenaway are delighted to offer a range of BRAND NEW luxury apartments at Guild House, Oundle Road, Peterborough, PE2 — available from Q4 2025.

Welcome to Guild House

A striking new development of 138 high-spec apartments, Guild House combines contemporary living, stylish interiors and exceptional convenience in a prime Peterborough location. Whether you’re a commuter, city-dweller or simply looking for a beautifully finished, low-maintenance home, Guild House delivers comfort, security and design-led features at every turn.

The Development

Guild House offers a selection of 1- and 2-bedroom apartments, including ten exclusive flats with private entrance doors and their own garden spaces — ideal for added privacy and outdoor enjoyment.

Every apartment is designed with modern living in mind:

  • Contemporary finishes throughout, including wood-effect luxury vinyl flooring in living areas and carpeted bedrooms
  • Stylish, fully fitted kitchens with integrated fridge/freezer, dishwasher, oven, hob, and range hood, with a choice of three colour schemes
  • Bathrooms feature premium Ideal Standard sanitaryware, thermostatic showers, large fixed glass walk-in shower panels, rail fall shower heads, modern tiling, and large premium mirrors
  • All apartments come with fitted white Venetian blinds for a clean and modern aesthetic
  • WIFI-controlled electric panel radiators allow convenient, efficient heating from your smartphone
  • Hard-wired smoke/heat alarms, mechanical ventilation (MEV), fibre broadband, and TV/network points in every unit

Ground-floor apartments enjoy private access, while upper levels are reached via secure communal foyers with lift access to all floors.

Safety & Security

  • Fire mist suppression system is installed in all top-floor new build apartments only
  • Full sprinkler coverage throughout the development
  • Secure access control and CCTV in all internal and external communal areas
  • Professionally fitted secure post boxes for all residents

Premium Finishes & Penthouses

A select number of penthouse apartments offer enhanced specifications for a more premium lifestyle, including:

  • Larger, upgraded kitchens with matching worktop panel upstands and a sleek angled chimney hood
  • Matt black switches and sockets, and grey-painted skirtings & architraves for a modern, refined look
  • Alternative tiling and lighting options, plus private balconies or terraces with views across Peterborough

Communal Spaces

Guild House also benefits from professionally designed communal areas and outdoor facilities, including:

  • A welcoming main entrance fitted out with large-format floor tiles, wood-effect ceiling panelling, illuminated signage, and elegant floor planters
  • Landscaped communal gardens, allocated parking, secure cycle storage, and refuse/recycling stores

Location & Connectivity

Located on Oundle Road, Peterborough (PE2 9PL), Guild House is ideally positioned for access to the city centre, mainline rail links and major roads:

  • Peterborough train station offers fast, frequent connections to London (approx. 45–60 minutes)
  • A1(M) and other major roads are easily accessible for regional travel
  • Close proximity to local amenities, shopping, dining, green spaces, and leisure facilities

 Ideal for Modern Living

Whether you're a young professional, couple, or small family, Guild House offers stylish, hassle-free living in a well-connected location. Designed with quality, comfort, and security in mind, these homes are perfect for city workers and commuters seeking a high-spec sanctuary with all the conveniences of modern life.

*HOLDING DEPOSIT £390.00*

PROPERTY DETAILS:

- BRAND NEW APARTMENTS 

- ZERO DEPOSIT SCHEME 

- BALCONY WITH VIEWS 

- LUXURY KITCHEN & BATHROOM SUITES

- ALLOCATED PARKING 

- DIRECT LINKS TO LONDON

- UNFURNISHED 

- AVAILABLE FROM NOVEMBER 

- (RENT) £1700.00 PCM

- (INITIAL DEPOSIT) £1950.00

- EPC TO FOLLOW

Permitted payments

For properties in England, the Tenant Fees Act 2019 means that in addition to rent, lettings agents can only charge tenants (or anyone acting on the tenants behalf) the following permitted payments:

Holding deposits (a maximum of 1 weeks rent);
Deposits (a maximum deposit of 5 weeks rent for annual rent below £50,000, or 6 weeks rent for annual rental of £50,000 and above);
Payments to change a tenancy agreement eg. Change of sharer (capped at £50 or, if higher, any reasonable costs);
Payments associated with early termination of a tenancy (capped at the landlords loss or the agents reasonably incurred costs); this will be done a pro rate basis.
Utilities, communication services (eg. Telephone, broadband), TV licence and council tax;
Interest payments for the late payment of rent (up to 3% above Bank of Englands annual base percentage rate);
Reasonable costs for replacement of lost keys or other security devices;
Contractual damages in the event of the tenants default of a tenancy agreement; and
Any other permitted payments under the Tenant Fees Act 2019.

Tenant protection
In addition to publishing relevant fees, lettings agents are also required to publish details of: The Redress Scheme – MN: PRS042633. The Property Ombudsman – RN: EO2874. Client Money Protection Scheme – AN: A8201. This office is a member of ICO. We protect our deposits with The Deposit Protection Scheme.

Symonds and Greenaway

Contact Our Office

5 The Green, Peterborough, United Kingdom

01733 913603

info@symondsandgreenaway.co.uk

Fill in your details below to request a viewing.





    Peterborough Branch






      5 The Green, Castor, Peterborough, PE5 7AR
      Rightmove Rightmove
      Symonds and Greenaway

      Contact Our Office

      5 The Green, Peterborough, United Kingdom

      01733 913603

      info@symondsandgreenaway.co.uk

      Helpful Links

      • Buy
      • Let
      • About
      • Sales Fees
      • Letting Fees
      • Contact
      Safe Agent Safe Agent
      2026 Milton Property Group Limited (Trading as Symonds & Greenaway).
      Company Registration Number: 15162952 and Company Registered Address: 5 The Green, Peterborough, PE4 6RT.

      We are registered with –
      Property Redress Scheme – Membership Number: PRS042633
      The Property Ombudsmen – Membership Number: EO2874
      Client Money Protection (Safe Agent) – Membership Number: A8201
      National Residential Landlords Association – Membership Number: 3130626

      Privacy Policy | Terms and Conditions | Complaints Procedure

      Leave us a message

      Fill in your details below to get in contact and we will be back in touch as soon as we can.